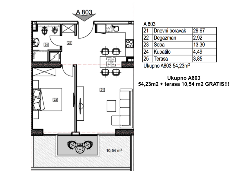
2-х комнатная квартира 54.23m2 № A803

  • Art
  • Kauf
  • Immobilienart
  • Wohnung
  • Fläche
  • 54 m2
  • Stockwerke
  • 9
  • Anzahl der Zimmer
  • 2
1-bedroom apartment number A803 in an exclusive multi-complex «Porto Budva» with a shopping center of 8000 sq.m and a SPA-center 3500 sq.m with a wide range of services, with indoor and outdoor pools! 

The apartment is on the 8 floor. Ceiling height 3.4 m.

The price of apartments is on interior “turnkey” with designer renovation!

The apartment with a direct view of the sea and the fortress of the Old Town one bedroom apartment total area 52.21 sq.m + terrace with landscaping as a gift!

Monthly fee for maintenance of the house 0,50 e/m2 (elevator maintenance, cleaning of common internal premises and adjacent territory).

The apartment consists of:

Living room with the adjoining kitchen 27.86 sq.m

Bedroom 13.30 sq.m

Dressing 2.71 sq.m

WC 4.49 sq.m

Terrace 3.85 sq.m

Rooms:

Dropped ceilings

Lighting

Wallpaper

Heated floors

Oak parquet 1st class

Bathroom:

Plumbing: Villeroy & Boch (shower or bathtub)

Marble

Granite firm “Travertine”

Mosaic tiles of Venetian glass firm “Valentino”

Heated floors

Facade: granite beige firm “Travertine”, three-chamber profiles windows.

Management Company provides services to resale and rent your apartment throughout the year!

Surveillance!

The price of apartments includes the cost of designer finishes premium!

Additional equipment according to your wishes!

Ability redevelopment apartment under construction!

All materials for the apartments, you can directly choose from us!

Full support of the transaction!

For clients with free legal services!

When purchasing real estate granted a residence permit in Montenegro for a year!

Completion date  – the end of 2018
С уважениeм/Best regards/Sa poštovanjem

Ana Golubović
Sales Director
Tel/Viber/Whats App:+382 68 132 995
Invest and construction company "Alart Centar-Budva CG" 
SHOPPING CENTAR & APARTMENTS "PORTO BUDVA"
www.portobudva.me 
www.chernogoriyastroyinvest.com

8 800 2001333 бесплатный звонок для России 

С уважениeм/Best regards/Sa poštovanjem

Ana Golubović - Sales Director
+38268132 995
  • Lage
LandMontenegro
RegionBudva Municipality
OrtBudva
Immobilienart:Wohnung
  • Eigenschaften
Baujahr:2018
Anzahl der Zimmer:2
Anzahl der Schlafzimmer:1
Anzahl der Toiletten:1
Wohnfläche (m2):54
Grundstücksfläche (m2):6000
  • Komfort
Fussbodenbelag:Fliesenboden, Laminatboden, Parkettboden, Teppichboden, Holzdielen, Marmorboden, Sonstiges
Küche:Offene Küche
Bad:Bad mit Dusche
Andere Räume:Abstellraum, Ankleideraum, Gäste-WC
Sicherheitsanlagen:Alarmanlage, Videoüberwachung, Notruf-Anlage, Security, Rauchmelder
Ausstattung:Aufzug, Wintergarten, Balkon/Terrasse, Klimaanlage, Sauna
Heizungsart:Elektroheizung
Möblierung:unmöbliert
Fensterrahmen:Alurahmen
Fensterverglasung:Lärmschutzverglasung, Sonnenschutzverglasung, Wärmeschutzverglasung, Panzerglasverglasung
Aussicht:mit Meeresblick

250 608 €

288 658 $
23 802 190 ₽

Auf der Karte

Weitere Angebote dieses Anbieters