Apartment in Prag 3, 4 Schlafzimmer, 159 m2 + 79 m2 Terrasse

  • Art
  • Kauf
  • Immobilienart
  • Wohnung
  • Fläche
  • 238 m2
  • Stockwerke
  • 12
  • Anzahl der Zimmer
  • 4
www.abrupt.ru     Продается просторная квартира с 79 м2 террасой, расположенная на 4-м этаже закрытого жилого проекта с частным парком, 24-часовой рецепцией, парковкой, службой охраны и кафе. Квартира находится в непосредственной близости с парком Парукаржка (park Parukářka).
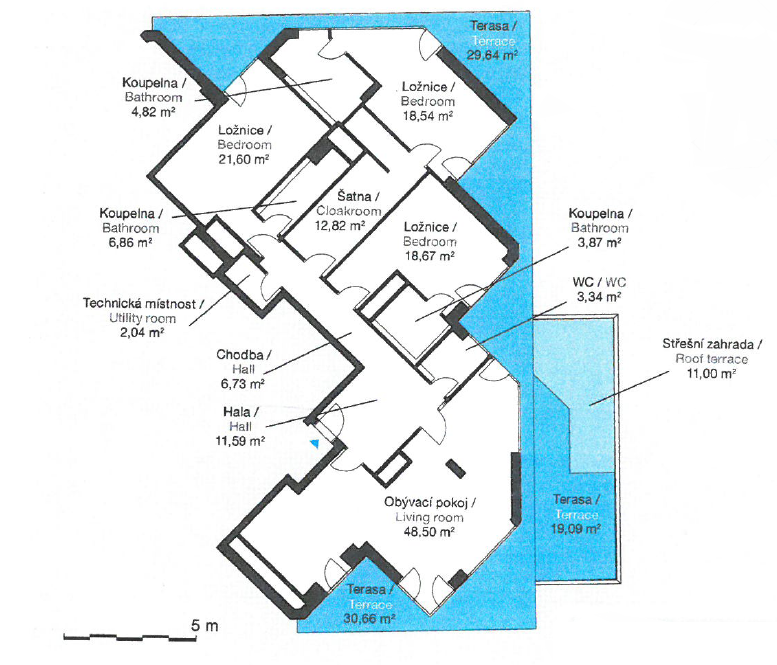
Интерьер квартиры состоит из просторной гостиной с кухней-нишей, 3-х спален с примыкающими ванными комнатами, гардеробной, отдельного туалета и технического помещения. Квартира характеризуется рядом французских окон, обеспечивающих достаточно дневного света и доступ к террасе из всех жилых комнат.
В квартире имеются деревянные полы в главной жилой части, большого формата напольная и настенная плитка в ванных комнатах, полы с подогревом, современный кухонный гарнитур и встроенные шкафы. Покупная цена включает в себя 2 парковочных места в гараже и подвал.
Проект находится в приятном районе в Праге 3 (Praha 3) с полным перечнем инфраструктуры (Ольшанская поликлиника, почта) и с хорошей транспортной доступностью до центра города благодаря трамвайному сообщению.
Интерьер 159 м2, терраса 79 м2, подвал 6,5 м2.
  • Lage
LandTschechien
RegionPrague
OrtPrague
Immobilienart:Wohnung
  • Eigenschaften
Anzahl der Zimmer:4
Wohnfläche (m2):159
Gesamtläche (m2):238
  • Komfort
Ausstattung:Aufzug, Balkon/Terrasse

425 300 €

499 773 $
39 706 244 ₽

Auf der Karte

Weitere Angebote dieses Anbieters