Byleydi Yasam Evleri

  • Art
  • Kauf
  • Immobilienart
  • Wohnung
  • Fläche
  • 73 m2
  • Stockwerke
  • 4
  • Anzahl der Zimmer
  • 2
•	Направление: Анталия, Коньяалты
•	Цена: €75000
•	Метраж: от 51 м2
•	Количество спален: 1
•	Количество санузлов: 1
•	Количество балконов: 1
•	Этаж\Этажность: с 1 по 4 / 5
•	Отделка: Чистовая отделка
•	Меблировка: Кухонный гарнитур с плитой, духовкой и вытяжкой, кондиционеры, посудомоечная машина, холодильник, стиральная машина, душевая кабина, сантехника
•	Расстояние до моря: 900м
•	Расстояние до центра: 500м
•	Первичное жилье
•	Бассейн
•	Рассрочка

Общее
Комплекс называется Bileydi Yasam Evleri (Билиеди Яшам Евлери), находится вАнталии в районе Коньяалты. Он состоит из 4 жилых домов, придомовой территории и большого бассейна с детской секцией. Территория комплекса составляет 6600 м2. Общее количество апартаментов в комплексе — 154.
Срок сдачи комплекса — осень 2015 года.
Bileydi Yasam Evleri — объект строительной компании с 40-летним стажем «Suat Tuncay» (проекты компании в 2009 и 2012 годах Архитектурным бюро Анталии признаны лучшими архитектурными проектами года).
Комплекс Bileydi Yasam Evleri строится в инвестиционно выгодном месте у реки Богачай, на которой в ближайшее время будет реализован международный проект по благоустройству территории со строительством парковой зоны, лучших кафе и ресторанов, речного порта для яхт.
Квартиры
В комплексе Bileydi Yasam Evleri (Билиеди Яшам Евлери) для продажи имеется 4 типа квартир: 1+1, 2+1, 2+1 (дуплекс) и 3+1 (дуплекс).
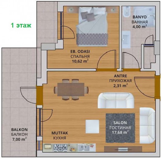
Апартаменты 1+1 располагаются на 1-4 этажах. Их площадь составляет: на 1 этаже — 51 м2, 69 м2, 72 м2 и 78 м2, на 2-4 этажах — 65 м2.
Характеристика квартиры
— Автоматическая входная дверь в подъезд с кодовым замком и видеодомофоном
— Вход в здание, лестницы и лестничные площадки выполнены из первоклассного мрамора и деревянного покрытия
— Стальные входные двери в квартиры
— Лакированные межкомнатные двери
— Встроенные шкафы в комнатах
— Шкаф в прихожей
— Стены – сатиновая штукатурка и атласная краска на водной основе
— Подвесные потолки, потолочная подсветка, пластиковая краска поверх сатиновой штукатурки
— Декоративные обои
— Импортный ламинат (комнаты и гостиная)
— Гранитная плитка 60*60 (вход, коридор, балконы)
— Керамическая плитка марки Canakalle/Serra (кухня и с.у.)
— Подвесные унитазы в санузлах
— Душевая кабина с поддоном
— Мебель в ванных комнатах
— Сантехника марки Artema/Eca Batarya в санузлах «Lineadecor»
— Кухонная мебель (акрил и стекло)
— Рабочая поверхность на кухне из акрила
Обогрев / охлаждение
— Газовое отопление (газовый котел и батареи)
— Датчик утечки газа, датчик дыма
— Кондиционеры
Сантехника
— Использование воды из скважины для коммунального снабжения
— Автоматическая система полива сада
— Использованы трубы марки VESBO
— Хранилище для воды, гидрофор, система очистки воды
Электричество
— Генератор электроэнергии на случай отключения электричества с мощностью, позволяющей использовать электричество внутри квартиры, в общих помещениях, на парковке, для освещения территории
— В общих помещениях использовано освещение с фотоэлементами
О расположении
Комплекс Bileydi Yasam Evleri располагается в Анталии в административномрайоне Коньяалты: расстояние до пляжей Коньяалты — 900 м, до крупных торговых центров 6 км, до центра города — 10 км, до аэрпорта — 28 км, до Кемера — 30 км, до гольф-центра Белек — 50 км, до горнолыжного курорта саклыкент — 33 км.
Google Maps Plugin
Инфраструктура комплекса
— Детская игровая площадка
— Беспроводной интернет на территории комплекса
— Ландшафтный дизайн сада и террас, являющихся неотъемлемой частью концепции жилого комплекса
— Открытый бассейн площадью 330 м2 , детский бассейн, раздевалки, души и туалеты, террасы для солнечных ванн, фитнес-центр, кафетерий, пешеходные дорожки и ухоженная зеленая территория
— Беседки и барбекю для жителей комплекса
— Сауна и паровая комната
  • Lage
LandTürkei
RegionAntalya
OrtAntalya
Immobilienart:Wohnung
  • Eigenschaften
Baujahr:2015
Anzahl der Zimmer:2
Anzahl der Schlafzimmer:1
Anzahl der Küchen:1
Wohnfläche (m2):63
Gesamtläche (m2):73
  • Komfort
Fussbodenbelag:Laminatboden
Küche:Einbauküche
Bad:Bad mit Dusche
Sicherheitsanlagen:Videoüberwachung, Security, Rauchmelder, Sonstiges
Ausstattung:Aufzug, Garten, Balkon/Terrasse, Klimaanlage, Sauna
Heizungsart:Gasheizung
Möblierung:unmöbliert
Fensterrahmen:Alurahmen
Fensterverglasung:Sonnenschutzverglasung, Wärmeschutzverglasung
Zusätzliche Ausstattung:Waschmaschine, Kühlschrank, Herd, Sonstiges
Aussicht:mit Meeresblick, mit Aussicht auf die Berge, mit Gartenaussicht, Sonstiges

75 000 €

87 955 $
7 021 676 ₽

Auf der Karte

Weitere Angebote dieses Anbieters